平良東仲宗根 RC造 専有面積105.26㎡
価格
4,280 万円
物件の詳細情報
物件名
平良東仲宗根 RC造 専有面積105.26㎡
所在地
沖縄県宮古島市平良東仲宗根
地域学区
平良 / 北
最寄施設
北小学校 徒歩120m / 2分 車240m / 1分
価格
4,280 万円
表面利回り
5.60%
建物構造
鉄筋コンクリート造
階数
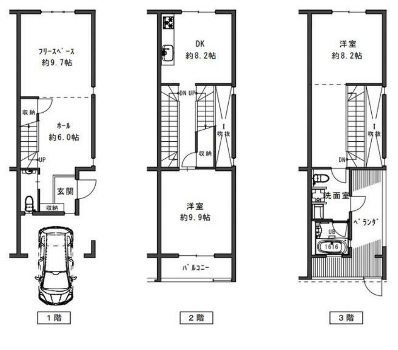
3
面積計測方式
内法
建物面積
105.26 m² / 31.84 坪
間取り
3DK
築年月
2019年11月 ( 築6年 )
駐車場
有り
土地権利
所有権
地目
宅地
国土法
不要
電気
沖縄電力
ガス
プロパンガス
現況
賃貸中
引渡
相談
備考
※現況渡し
※自主管理 管理人:無 管理組合:無
※自主管理 管理人:無 管理組合:無
取引態様
仲介
お問い合わせ
PDFを生成中...









担当コメント
【表面利回り 5.60% 年間収入240万円】 現在、月20万円で賃貸中 土地敷地権の割合32339分の10526 駐車場、バイク置き場、駐輪場あり